规划管理
首页
规划管理
设计方案公示
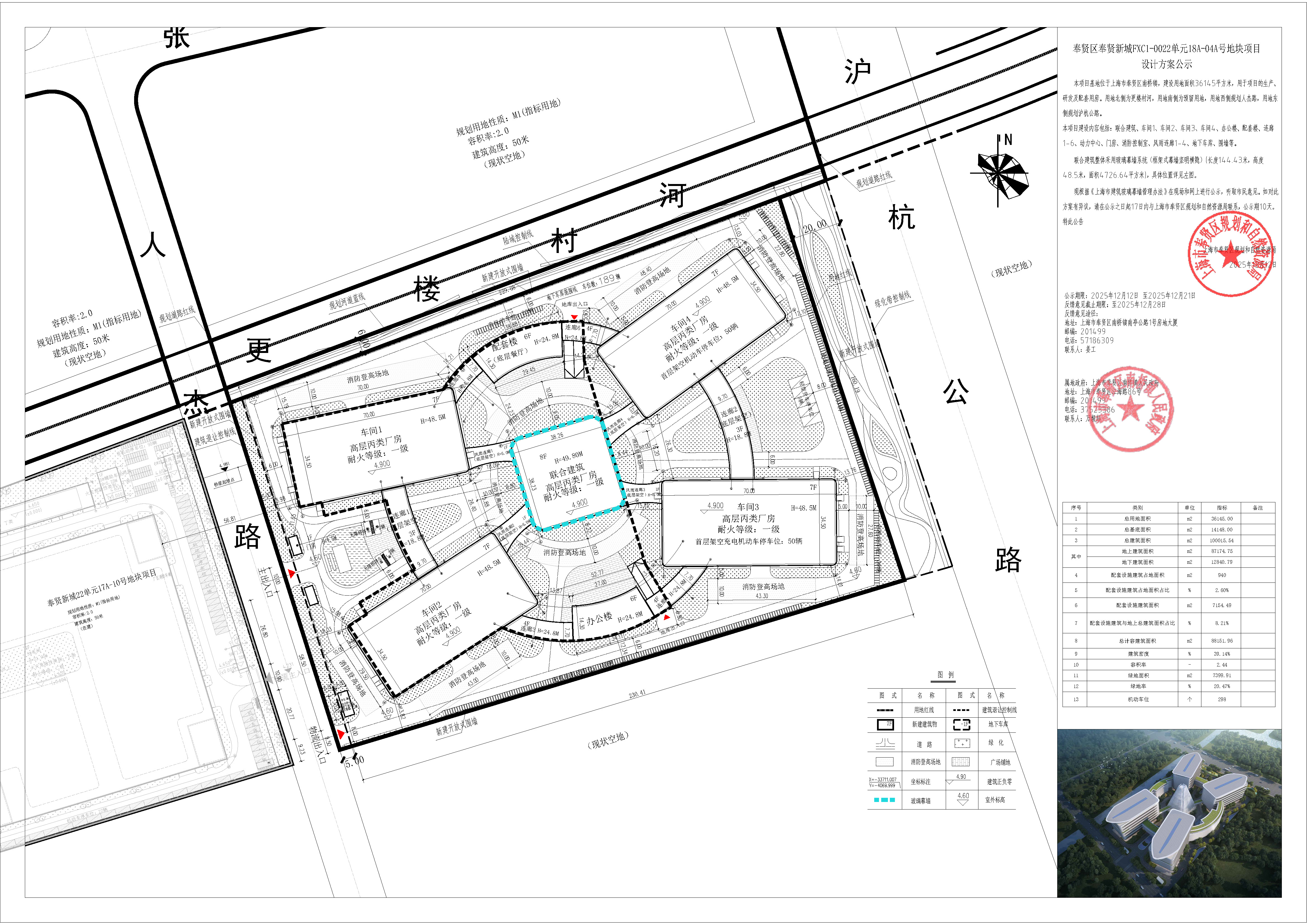
奉贤区奉贤新城FXC1-0022单元18A-04A号地块项目设计方案公示
发布时间:2025-12-11
相关附件
新城22单元18A-04A地块总图工程-总平面图-幕墙公示.pdf
相关推荐
热门政策推荐
本区
本市
服务推荐
×
您对推荐的结果
喜欢
不喜欢
不喜欢理由
取消
提交
栏目设置
×